Típus
Eladó
Kategória
Társasházi lakás
Eladási / Kiadási ár
154.9 M Ft
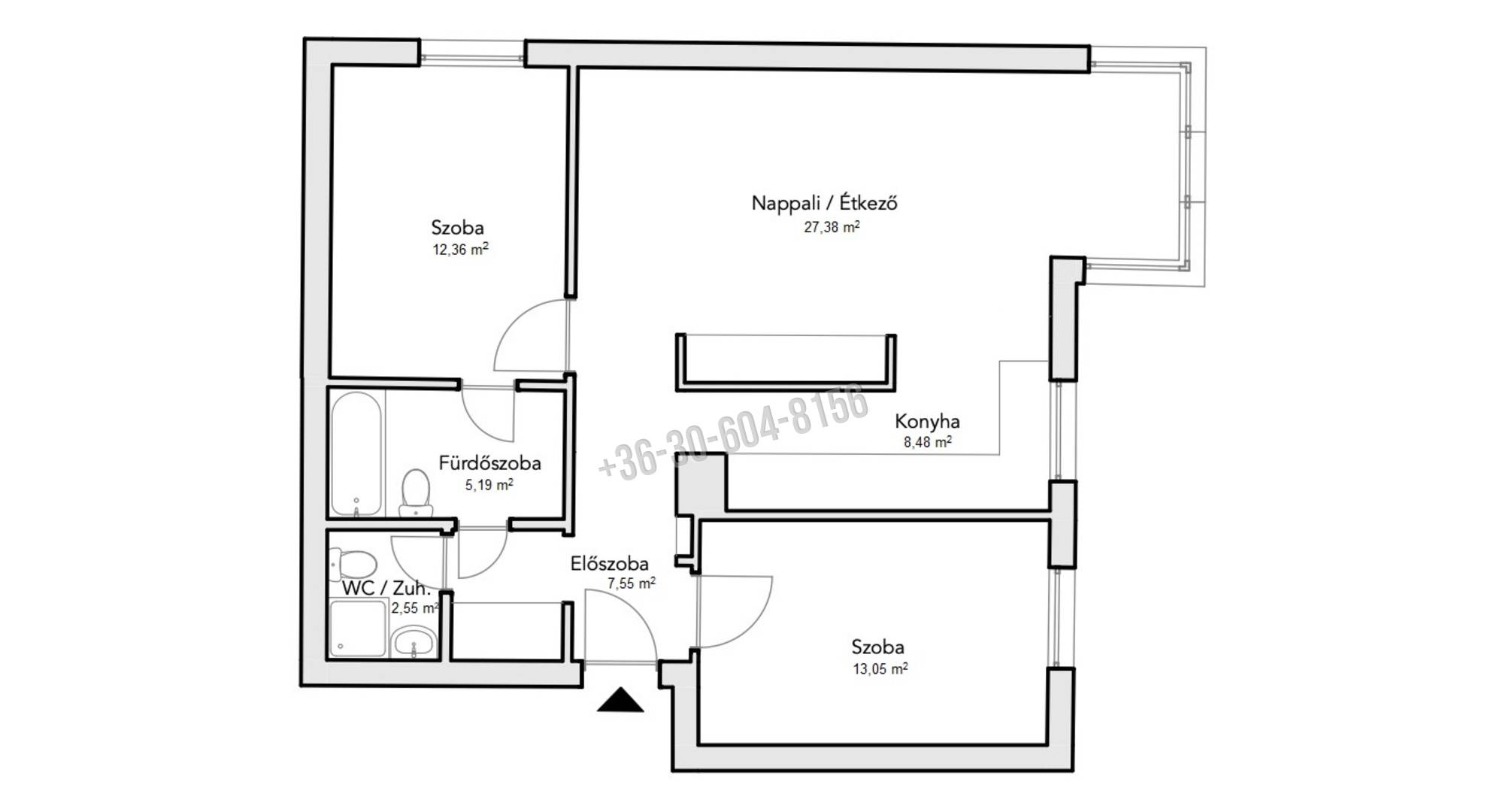
Alapterület
77m²
Építés éve
2002
Ingatlan állapota
Kifogástalan
Fűtés
Házközponti egyedi méréssel
Szobák száma
3db
Szintek száma
6
Emelet
2

Leírás

XIII. Újlipótvárosban, csöndes mellékutcában, 2002-ben épült, kiváló minőségű, karbantartott, liftes társasházban, II. emeleti, 77 m2-es, 1 nappali – amerikai konyhás, 2 hálós, 2 fürdős, nagyon szép állapotú, alacsony rezsivel rendelkező, akadálymentesen megközelíthető lakás eladó, akár a képeken látható ingóságokkal együtt.

Opcionálisan egy férőhely vásárolható hozzá a teremgarázsban (lifthez közeli, nagy autóval is jól használható) 14 MFt-os áron.

A társasház parkosított, pados, kis szökőkutas kertje könnyen megközekíthető, használható.

Extrák: légkondicionálás, automata szigetelt redőnyök, biztonsági ajtó, beépített bútorok

Gépesített konyha: kerámia főzőlap, villanysütő, szagelszívó, hűtőszekrény, mosogatógép

Közös költség: 40-50 000 Ft/hó
Rezsi: 10-15 000 Ft/hó

IngatlanMax.hu - eladó ingatlanok - ingatlanpiac
Adatvédelmi áttekintés

Ez a weboldal sütiket használ annak érdekében, hogy a lehető legjobb felhasználói élményt nyújthassuk. A sütikre vonatkozó információkat a böngészőjében tároljuk, és olyan funkciókat látnak el, mint például az Ön felismerése a visszatéréskor, valamint annak segítése, hogy csapatunk megértse, mely részeket találja a legérdekesebbnek és leghasznosabbnak.