Típus
Eladó
Kategória
Lakás
Eladási / Kiadási ár
899 E Ft
Alapterület
130m²
Ingatlan állapota
Használt – felújított
Fűtés
Gáz cirko
Szobák száma
4db
Emelet
2

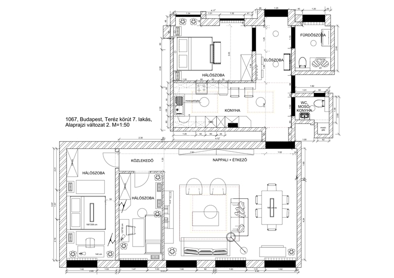
Leírás

Kiadásra kínálunk VI. kerület Teréz körúton , egy teljesen felújított 3 külön nyíló hálószobás lakást, igényes, rendezett ház 2. emeletén!

A lakás gépesített amerikai konyhával, étkezős nappalival, 3 külön nyíló hálószobával , 2 fürdőszobával rendelkezik.

Központi elhelyezkedésének köszönhetően tömegközlekedéssel is jól megközelíthető.

Tulajdonosa igényes, hosszútávú ( minimum 1 évre ) bérlőt szeretne, 2 havi kaucióval azonnal költözhető.

Várjuk hívását!

IngatlanMax.hu - eladó ingatlanok - ingatlanpiac
Adatvédelmi áttekintés

Ez a weboldal sütiket használ annak érdekében, hogy a lehető legjobb felhasználói élményt nyújthassuk. A sütikre vonatkozó információkat a böngészőjében tároljuk, és olyan funkciókat látnak el, mint például az Ön felismerése a visszatéréskor, valamint annak segítése, hogy csapatunk megértse, mely részeket találja a legérdekesebbnek és leghasznosabbnak.