Típus
Eladó
Kategória
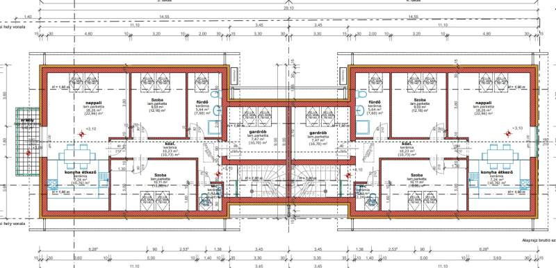
Lakás
Eladási / Kiadási ár
54.9 M Ft
Alapterület
88m²
Építés éve
2025
Ingatlan állapota
Új
Fűtés
Hőszivattyú
Szobák száma
4db

Leírás

NÉGY LAKÁSOS TÁRSASHÁZ TERASZ ÉS KERTKAPCSOLATTAL!

Ha képes vagy meglátni,mit rejt ez a 4 lakásos társasház 2 földszinti kertkapcsolattal, 2 tetőtéri terasz kapcsolattal, kocsibeállóval.

Ha valami elindult benned ,ne fogd vissza magad.Bontsd ki a benned lévő erőt ,higgy magadban vágj bele!

A kivitelező törekedett arra,hogy magas minőségű,egyedi kivitelezésű ingatlant alkosson ezen a nem mindennapi környéken!!

A épület– csakúgy, mint a kivitelező számtalan, megtekinthető referencia háza esetében is – magas minőségi anyagok felhasználásával és magas műszaki tartalommal épül.

Fontos, hogy az ingatlanvásárlás hosszú távon is értékálló befektetés legyen!

Főbb műszaki jellemzők
– Beton sávalap
– Első födém: monolit
– Zárófödém: könnyűszerkezetes
– 10cm hanggátló + 2x5cm kőzetgyapot+ 2x2rtg gipszkarton
– Főfalak 30cm kerámia tégla
– 15cm hőszigetelés
– Födémszigetelés kőzetgyapot
– Nyílászárók 3rtg üvegezéssel ellátott belül fehér, többkamrás műanyagtokkal
– Bordázott szendvicspanel tetőfedés

A vételár a következőket foglalja magában:
– Burkolatok (hideg-meleg): 5000 Ft/nm
– Beltéri ajtók: 50.000 Ft/db kilinccsel
– Beépített tartályos WC +kézmosó+ Törölköző szárító
– Fűtés hőszivattyús
– Helyiségenként változó darabszámú, dugalj/gyenge áram kiállás, mennyezeti lámpatestek,
– Bekábelezett gyenge áram
– vízmérés önálló mérővel

Szép napot sikeres vásárlást kívánok!

Köszönöm hogy időt szánt a hirdetésemre!

Készséggel állok rendelkezésre további kérdésekkel kapcsolatban!

IngatlanMax.hu - eladó ingatlanok - ingatlanpiac
Adatvédelmi áttekintés

Ez a weboldal sütiket használ annak érdekében, hogy a lehető legjobb felhasználói élményt nyújthassuk. A sütikre vonatkozó információkat a böngészőjében tároljuk, és olyan funkciókat látnak el, mint például az Ön felismerése a visszatéréskor, valamint annak segítése, hogy csapatunk megértse, mely részeket találja a legérdekesebbnek és leghasznosabbnak.