Típus
Eladó
Kategória
Ház
Eladási / Kiadási ár
55 M Ft
Telek terület
500m²
Alapterület
122m²
Építés éve
2023
Ingatlan állapota
Új
Fűtés
Hőszivattyú
Szobák száma
4db

Leírás

ERCSIBEN, A KELETI KÁROLY UTCÁBAN, HŐSZIVATTYÚS FŰTÉSSEL, EGYSZINTES, JÓ BELSŐ ELRENDEZÉSŰ, ÚJ ÉPÍTÉSŰ, IKER HÁZ GYÖNYÖRŰ TELEKKEL!

AZ INGATLAN CÉGNÉVEN ÉPÜL!

HŐSZIVATTYÚ MAGAS MINŐSÉGBEN!

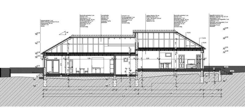
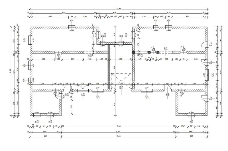
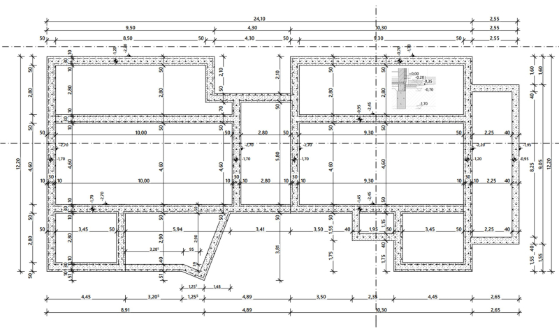
Ercsiben a Keleti Károly utcában az utca aszfaltozott, ELADÓ egy új építésű, bruttó 122 nm-es teraszos, nappali + 3 szobás, jól megtervezett szinte önálló családi ház, a hozzá tartozó kb. 500 nm-es telekkel.

Műszaki paraméterek:
Alap: vasbeton sávalap, aljzat erősítéssel. A lábazat szigeteléssel ellátott.
Az épület külső falazata 30 cm-es Bakonytherm téglából épül 15 cm hőszigeteléssel, a zárófödémen 30 cm hőszigeteléssel, a tető TERRÁN cserépfedéssel készül.

Nyílászárók: műanyag szerkezetű, bukó-nyíló kivitelben 3 rétegű üvegezéssel.
A fűtést hőszivattyú biztosítja padlófűtéssel még a garázsban is!

A beépítésre kerülő minőségi anyagoknak és minőségi kivitelezésnek köszönhetően az épület kiváló hőtechnikai paraméterek szerint épül.

A készültségi foknak megfelelően lehetőség van igény szerinti extrák beépítésére is, ebben az esetben az ár megegyezés tárgyát képezi.

Ha önnek elege van az ugyanolyan kinézetű,új építésű tömeg ingatlanokból,és a minőség kiemelten fontos számára,akkor jó helyen jár!

A kivitelező a lakás alaprajzát a belső elrendezés tekintetében,a vevők által támasztott igények mentén kész módosítani.

Várható átadás: 2023. lV. negyedév.

Megközelíthetősége és infrastruktúra jó. Iskolák, óvodák, bevásárlási lehetőségek gyalogosan pár perc alatt elérhetők.

Amennyiben az ingatlan felkeltette az érdeklődését, várom megtisztelő hívását!

IngatlanMax.hu - eladó ingatlanok - ingatlanpiac
Adatvédelmi áttekintés

Ez a weboldal sütiket használ annak érdekében, hogy a lehető legjobb felhasználói élményt nyújthassuk. A sütikre vonatkozó információkat a böngészőjében tároljuk, és olyan funkciókat látnak el, mint például az Ön felismerése a visszatéréskor, valamint annak segítése, hogy csapatunk megértse, mely részeket találja a legérdekesebbnek és leghasznosabbnak.