Típus
Eladó
Kategória
Ház
Eladási / Kiadási ár
98.9 M Ft
Telek terület
500m²
Alapterület
92m²
Építés éve
2025
Ingatlan állapota
Új
Fűtés
Hőszivattyú
Szobák száma
4db

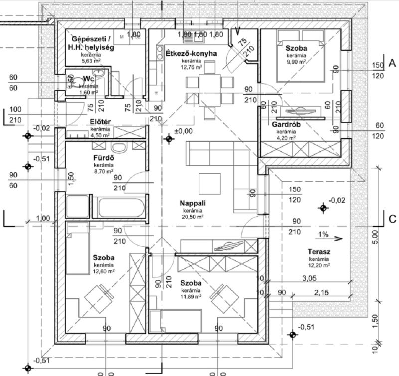
Leírás

Eladó Bicske kertvárosi részén egy földszintes, nettó 92,28 nm-es családi ház a hozzá tartozó 500 nm-es telekkel, különálló dupla garázzsal!

Nappali + 3 hálószoba (9,10,12 nm), fürdőszoba WC-vel + külön WC.

Műszaki paraméterek:
30-as Ytong falazat rajta 10 cm dryvit szigeteléssel
Beton tetőcserép
3 rétegű műanyag fehér nyílászárók
Minden helyiségben padlófűtés hőszivattyús rendszerrel
H-tarifás villanyóra
Elektromos redőny illetve klíma előkészítés

A telek osztott tulajdonú, társasházi alapító okirattal kerül átadásra. Különálló épület, megközelítése nyélen keresztül történik.
Burkolatok szabadon választhatók. Használatbavételi engedély előre láthatóan 2026 márciusára várható.
A ház megfelel az új CSOK Plusz feltételeinek, illetve igénybe vehető rá a az Otthon Start hitel is, így különösen jó lehetőség azoknak, akik saját elképzeléseik alapján szeretnék kialakítani otthonukat.

Az ingatlan kedvező elhelyezkedése és infrastruktúrája, rendkívül vonzóvá teszi. Több útvonalon is megközelíthető Budapest.

Bankfüggetlen hitel tanácsadónk díjmentesen áll az Ön rendelkezésére! Keressen bizalommal!

A hirdetésben szereplő adatok, információk, képek, alaprajzok stb… tájékoztató jellegűek! Irodánk az esetleges elírásokért felelősséget nem tud vállalni!

Tájékoztatjuk a Tisztelt Érdeklődőket, hogy az ingatlan hirdetésében szereplő telefonszám felhívásával Önök hozzájárulnak személyes adataik (név, telefonszám), a hirdetést feladó Kft. – által a bizalmas kezeléshez és nyilvántartáshoz.

További információért hívjon bizalommal a hét minden napján! Köszönöm, hogy időt szánt hirdetésemre, sikeres ingatlanvásárlást kívánok!

IngatlanMax.hu - eladó ingatlanok - ingatlanpiac
Adatvédelmi áttekintés

Ez a weboldal sütiket használ annak érdekében, hogy a lehető legjobb felhasználói élményt nyújthassuk. A sütikre vonatkozó információkat a böngészőjében tároljuk, és olyan funkciókat látnak el, mint például az Ön felismerése a visszatéréskor, valamint annak segítése, hogy csapatunk megértse, mely részeket találja a legérdekesebbnek és leghasznosabbnak.